Centrumplan Leimuiden

Ontwikkelaar/belegger Leyten ontwikkelde een integraal nieuw dorpscentrum voor Leimuiden. Wij hadden nogal wat kritiek op hun plannen en hebben deze op een positieve wijze in de vorm van een alternatief trachten bij te sturen. Als ontwerpeenheid, in samenwerking met Buro PRS en met illustraties van BertvanderMeij - illustraties in de stijl van de presentatie door Leyten.
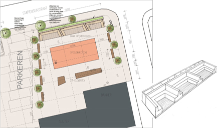
Belangrijkste aandachtspunten waren het 'dorps karakter' van de bebouwing (verspringende rooilijnen, vermijden van rechthoekige stedenbouwkundige plattegrond, variatie architectuur), een plein voor mensen i.p.v. auto's, koppeling aan de Dorpsstraat en de enige historische bebouwing ter plaatse ('doktersrijtje').

Leyten is inmiddels exit. In afwachting van nieuwe ontwikkelingen voor een integraal centrumplan heeft BRAMarchitecten nu een plan voor de tijdelijke verbetering van het dorpsplein voorgesteld. Binnen het gemeentelijk project 'Kernen in hun Kracht' wordt realisatie nagestreefd.

Momenteel is het Dorpsplein een parkeerterrein waar wekelijks een kleine markt plaatsvindt en jaarlijks een paar evenementen. De kern van ons plan is om een deel van het plein autovrij te maken zodat het plein ook een sociale functie krijgt en een uitnodigende plek wordt voor verblijf - ook op de dagen dat er geen markt of evenementen zijn. Een plein zoals het bedoeld is, als 'huiskamer' van het dorp. Vanwege de financiele haalbaarheid en het tijdelijk karakter worden eenvoudige middelen ingezet. Zitgelegenheid, groene begrenzing en een activiteit. Dat laatste in de vorm van speeltoestellen. Een trekker voor de jongste kinderen, en daarmee de ouders, en aantrekkelijk voor ouderen om naar te kijken.
Alles eenvoudig los te koppelen en met een heftruck te verplaatsen om ruimte te bieden aan evenementen.


Aan Tafel, Design en Overheid, Den Haag
Horeca - Franchise formule - interieur, meubel, bouwmanagement, Australian Homemade Icecream and Chocolate, Meerdere locaties
Horeca - Franchiseformule - Juicy Details, JuicyDetails, Schiphol, Rotterdam
Horeca - Franchiseformule - Soulmade Food, Soulmade, Den Haag
Horeca - Restaurant 's Molenaarsbrug, 's Molenaarsbrug, Alphen aan den Rijn
Horeca - Simit Sarayi Stationsplein Hollands Spoor, Simit Sarayi, Den Haag
Kantoor Advocatenkamer - interieur, meubel, Willem Heemskerk, Den Haag
Kantoor bedrijfsrestaurant - interieur/meubel, SDB, Leidschendam, Leidsenhage
Kantoor ING Direct - interieur/meubel, ING Direct, Hoofddorp
Kantoor KUBO - architectuur, KUBO Tuinbouwprojecten B.V., Monster
Kantoor KUBO - interieur, KUBO Tuinbouwprojecten B.V., Monster
Kantoor KUBO - meubelontwerp, KUBO Tuinbouwprojecten B.V., Monster
Kantoor Linklaters - interieur/meubel, Linklaters, Amsterdam Zuidas
Kantoor Notaris Voskamp - interieur/bouwkundig, Caminada Notarissen / Voskamp, Den Haag
Kantoor Satellite Newspapers - interieur/bouwkundig, Satellite Newspapers Worldwide, Den Haag
Keuken ontwerp, Kalkhoven, Gouda
Kinderboek Het Vierde, Vijfde, Zesde, Zevende, Achtste, Negende en Tiende Biggetje, Eigen beheer, Rijnsaterwoude
Kinderdagverblijven Meubellijn , STIKOV, Voorburg
Museum Swaenstyn, Museum Swaensteyn, Voorburg
Museum voor de Vrede, Gemeente , Duhok, Irak
Overheid - Gemeente Capelle - Gemeentehuis Burgerzaken - interieur/meubel, Gemeente , Capelle aan den IJssel
Overheid - Gemeente Delft - Herbestemming watertoren, Gemeente, Delft
Overheid - Gemeente Den Haag -Kantoor Dienst Stedelijke Ontwikkeling - Transvaal - interieur/bouwkundig, DSO/Gemeente, Den Haag
Overheid - Gemeente Leimuiden - Centrumplan, Eigen beheer, Leimuiden
Overheid - Gemeente Noordwijk - Herbestemming Watertoren, Gemeente, Noordwijk
Overheid - Ministerie BZK, Ministerie van binnenlandse zaken , Den Haag
Perscentrum Societeit Nieuwspoort, Perscentrum Societeit Nieuwspoort, Den Haag
Prijsvraag Erasmus NOMINATIE, Gemeente Rotterdam, Rotterdam
Prijsvraag Visie Herbestemming naoorlogse winkelstrips, Rijksdienst voor het Cultureel Erfgoed, Landelijk
Prijsvraag Visie Prins Clausbrug, Gemeente Dordrecht, Dordrecht
Sportaccommodatie VerNieuwbouw - Westland Sportcentrum, WSC, Monster
Stoel, Studie, Den Haag
Uitvaartcentrum Crematorium Ockenburgh, Yarden Uitvaartorganisatie, Den Haag
Woonblok dakopbouw - Vlamenburg, Particulieren, Mariahoeve, Den Haag
Woonhuis dakopbouw - Hoenderlaan, Particulier, Den Haag
Woonhuis interieur, Erik vd Poel, Rotterdam
Woonhuis opbouw - Hoornbruglaan, Particulier, Rijswijk
Woonhuis Trapkast - bouwkundig, interieur, meubel, Particulier, Amsterdam
Woonhuis uitbouw - bouwkundig, interieur, meubel, De heer en mevrouw Van Baelen - Cafferata, Spijkenisse
Woonhuis uitbouw - Rijn en Schiekade, Gilles Frijters, Leiden
Woonhuis uitbouw - Westeinde, Particulier, Voorburg
Woonhuis verbouwing/uitbouw, Particulier, Voorschoten
Woonhuis VerNieuwbouw, Particulier, Katwijk aan zee
Woonhuizen kapopbouw - Eendenlaan, Particulier, Den Haag
Woonhuizen kapopbouw - Eksterlaan, Particulieren, Den Haag
Woonhuizen kapopbouw - Zwanenlaan, Particulier, Den Haag
Woonhuizen opbouwen - Wateringse Veld, Particulieren, Den Haag
Zorgcentrum Transvaal - interieur, WZH, Den Haag
Zorginstelling Rivierduinen - interieur/meubel, GGZ, Gouda
Zwembad Aquamar - Haalbaarheidsstudie, Gemeente , Katwijk
Zwembad Aquamar - Strategisch Schetsboek, Sportfondsen Katwijk, Katwijk